Quadrilocale in vendita

La Spezia, Via Edmondo de Amicis - Mazzetta
€ 155.000
4 locali 4 locali
80 Mq 80 Mq
1 bagno 1 bagno

Quadrilocale in vendita

La Spezia, Via Edmondo de Amicis - Mazzetta

Descrizione annuncio

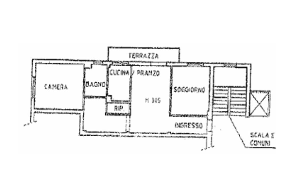
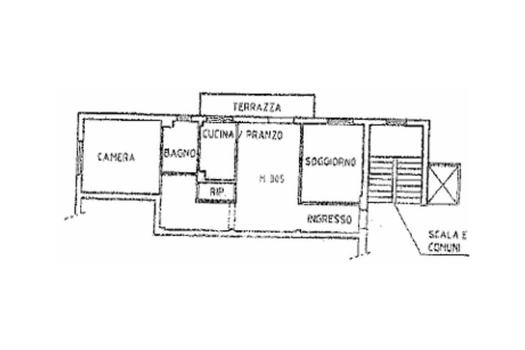
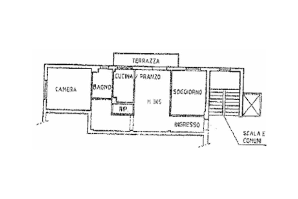
Nel cuore di Mazzetta, è disponibile un ampio appartamento di 80 mq, perfetto per chi cerca comodità e funzionalità l'immobile è situato al sesto ed ultimo piano con ascensore.

L'appartamento è composto da quattro locali ben distribuiti;

Tramite l'ingresso accediamo alla zona giorno composta da una cucina separata dal soggiorno garantendo confort e praticità.

La zona notte si compone di due camere da letto ed un bagno con finestra e box doccia.

La presenza di una terrazza aggiunge un tocco di vivibilità all'ambiente, mentre il ripostiglio offre ulteriore spazio per l'organizzazione domestica.

La posizione centrale in zona Mazzetta permette di raggiungere facilmente tutti i principali servizi, rendendo questa soluzione abitativa particolarmente interessante per famiglie e professionisti.

Mostra tutto

Nelle vicinanze

Trasporto pubblico Trasporto pubblico
stazione di La Spezia Migliarina
stazione di La Spezia Migliarina
1,1 Km
stazione di La Spezia Centrale
stazione di La Spezia Centrale
1,7 Km
Trasporto pubblico
200 m
Istituto Capellini - Viale S. Bartolomeo
Istituto Capellini - Viale S. Bartolomeo
350 m
Terminal Crociere di La Spezia
880 m
Ricariche auto elettriche Ricariche auto elettriche
ENERCOOP CC Le Terrazze by Duferco
510 m
Le Terrazze
560 m
Europa Park
840 m
Eurospin La Spezia | EnelX
1,2 Km
Scuole Scuole
Istituto Tecnico Statale Nautico Nazario Sauro
320 m
Scuole
720 m
Istituto di Istruzione Superiore Agostino Fossati - Manfredo Da Passano
1,1 Km
Scuole
1,1 Km
Liceo Artistico V.Cardarelli
1,4 Km
Farmacia Farmacia
Farmacia
580 m
Farmacia Spezina
1,6 Km
Farmacia della Stazione
1,6 Km
Farmacia Internazionale
1,9 Km
Farmacia dell'Arsenale
2,6 Km
Ospedali Ospedali
Ospedali
270 m
Ospedale Civile Sant'Andrea
320 m
Pronto Soccorso di La Spezia
410 m
ASL n5 Farmacia Casa della Salute
1,4 Km
Supermercati Supermercati
Coop
430 m
Ipercoop Le Terrazze
540 m
Conad
600 m
Basko
780 m
PennyMarket
840 m
Negozi Negozi
Oviesse
810 m
I sapori del Levante
940 m
OASI
1,4 Km
Alimentari
1,5 Km
Negozi
1,6 Km
Bar Bar
Joy
100 m
Il chiosco nel parco
720 m
Plaza Cafè
750 m
Tiffany Café
770 m
Skaletta
820 m
Ristoranti Ristoranti
La Pucceria di Anna e Enzo
110 m
La Pia Centenaria
220 m
Pizzeria Sotto I Portici
340 m
Pizza Mondo
450 m
Trattoria Italia
450 m
Mostra tutto

Caratteristiche

Rif.:
61152091
Piano:
6 di 6 con ascensore (ultimo Piano)
Terrazzi:
1
Camere da letto:
2
Arredamento:
Assente
Condizionamento:
Assente
Mostra tutto
Prezzo Prezzo
€ 155.000
Rata mutuo Rata mutuo
€ 732 / mese
Spese annue Spese annue
€ 1.800
Proponi il tuo prezzoProponi il tuo prezzo
Immobile valutato con T·Valuta

Classe Energetica

G
G
G
G
G
G
G
G
G
Anno di costruzione:
1940
Riscaldamento:
Centralizzato
Tipo impianto:
A radiatori
Tipo alimentazione:
Metano

Ti interessa visionare l'immobile?

Fissa un appuntamento  Fissa un appuntamento

Richiedi informazioni

Clicca su Leggi per aprire l'informativa
* Questi campi sono obbligatori

Calcola il tuo mutuo

Semplice e senza impegno
Anticipo

( % )
Mutuo

( % )

pochi semplici passi

inserisci i tuoi dati
Questionario completato
Grazie per aver richiesto un appuntamento senza impegno con un nostro Consulente del Credito e Assicurativo.

Hai inserito correttamente tutti i dati necessari e a breve riceverai una e-mail con un link da convalidare per inviare i tuoi dati.
Affiliato
Immobiliare Mazzetta Srl
P.zza John Fitzgerald Kennedy, 26 19122 La Spezia (SP)

Il nostro staff


  • Giada Tenerani
    Affiliata

  • Giovanni Micocci
    Affiliato
P.zza John Fitzgerald Kennedy, 26 19122 La Spezia (SP)
Zona: La Spezia-Mazzetta-Zona Ospedale-Valdellora
Mostra su mappa
Orari: Lunedi: 09:00/12:30 - 15:00:19:00 Martedì: 09:00/12:30 - 15:00:19:00 Mercoledì: 09:00/12:30 - 15:00:19:00 Giovedì: 09:00/12:30 - 15:00:19:00 Venerdì: 09:00/12:30 - 15:00:19:00 Sabato: 09:00/12:30
Affiliato
Immobiliare Mazzetta Srl
P.zza John Fitzgerald Kennedy, 26 19122 La Spezia (SP)

2025 Tecnocasa Franchising S.p.A. - P. IVA 08365160152 - Via Monte Bianco 60/A 20089 Rozzano (MI). Ogni agenzia ha un proprio titolare ed è autonoma. Privacy policy | Policy utilizzo | Cookie policy